temporalité

Diagramme de temporalié de l'atelier pédagogique


Diagramme de temporalié de l'atelier pédagogique

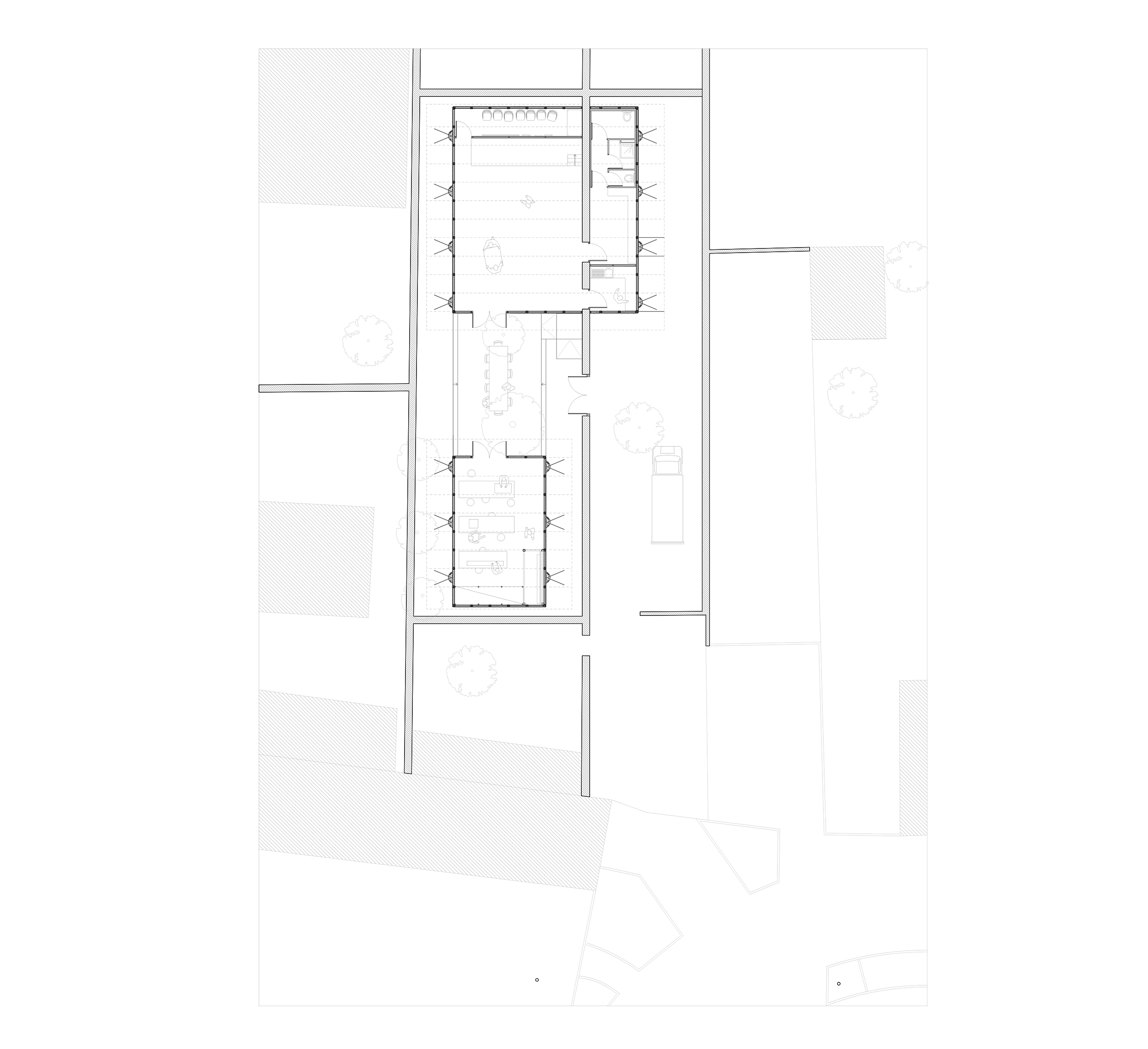
Le projet prend place sur un terrain accessible de la place Paul Jay, lieu remarquable de la vie champenoise. Le propriétaire peine à vendre cette parcelle de 445m2. Il paraît propice à une mise en location par un bail précaire. Ce contexte permet d’imaginer la construction d’un bâtiment éphémère proposant temporairement une réponse rapide à une demande locale, celle d’un espace polyvalent à disposition d’événements de proximité et de complément au centre Anne Sylvestre. Ceci étant, la mairie se porte maître d’ouvrage du projet avec un engagement du prestataire, l’architecte, de le développer à moindre coup : l’ensemble du budget est couvert par l’obtention possible de subventions et de mécénat. De plus, le nouvel éco-centre du territoire travaillant sur les ressources matérielles locales (pierre, bois, miscanthus, paille) est apte à effectuer des dons en nature pour la construction de ce projet participatif. Le chantier prend forme grâce au bénévolat d’une vingtaine de personnes. Le Fablab Moebius débute actuellement la mise en place d’un atelier bois dans un espace réduit. Il obtient un nouvel atelier plus adapté dans ce bâtiment temporaire en échange de leur implication dans sa construction. Une fois en activité, ce nouveau lieu obtient des recettes, bien que minimes, grâce à son activité socio-culturelle liée à une vie de quartier. Elles permettent de couvrir le loyer précaire, les factures énergétiques et l’entretien. Ce bâtiment éphémère est conçu afin de s’accomoder à différentes configurations de terrain. Il est composé de modules de murs et de toits montables et démontables permettant de constituer des hauteurs et largeurs de bâtis évolutives. Un système de tirants extérieurs structurels permet la diminution optimale d’éléments à adapter à chaque contexte de construction. Une fois désassemblés, ces modules sont conservés. Conçu et assisté numériquement grâce aux compétences du FabLab, et disponible en open data, ce bâtiment éphémère a vocation de servir de modèle à d’autres municipalités.

Scénario du mondule: montage/démontage

pneu cable jambe de force Temps 1: le sol Temps 2: le mur Temps 3: le toit Temps 4: l'assemblage

étapes d'assemblage d'une section de bâtiment

plan d'implantation

coupe transversale

thèmes
carte
temporalité
dimension
programmes
connexion