temporalité

Diagramme de temporalié de l'atelier pédagogique


Diagramme de temporalié de l'atelier pédagogique

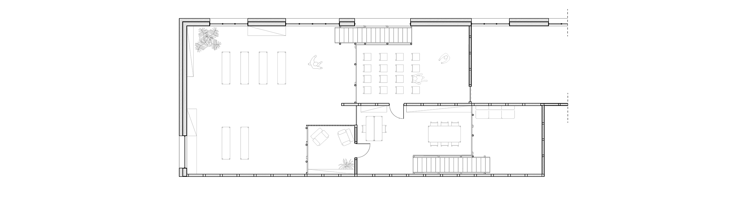
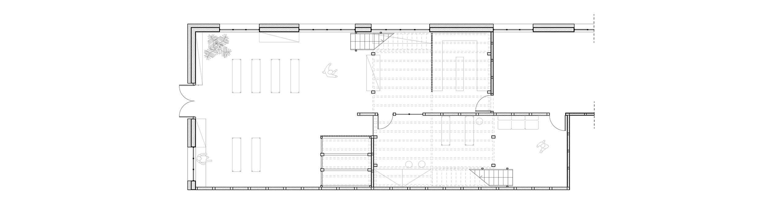
L’éco-centre (thème « matériaux ») présente dans son programme des espaces d’atelier et de recherche. Il permet de déménager durablement l’atelier bois du FabLab Moebius installé temporairement dans le studio éphémère. Moyennant un échange ponctuel de services en lien avec leurs activités, le FabLab et la Moebius Factory s’y installent exonérés de loyer. La Moebius Factory est une branche du FabLab Moebius offrant un service d’innovation, de conception, de prototypage et de production en petite série, destiné aux entreprises. Elle souffre d’un manque de visibilité. Une fois ancrée dans l’éco-centre, situé dans la zone ETIC de Champagne-Sur-Seine, un lien de proximité et de travail peut se développer avec les artisans et autres entreprises locales. Ces activités, complétées dans le même espace par le développement d’ateliers pédagogiques menés par les artisans locaux, participent à une revalorisation du savoir-faire champenois et d’échange de compétences. Les ateliers et bureaux sont conçus afin de minimiser le besoin en bois, et ainsi leur coût de construction. La partition interne de l’éco-centre est pensée de manière évolutive. Les assemblages constructifs des mezzanines permettent alors aisément de modifier les surfaces de plancher afin de s’adapter aux possibles changements d’organisation des espaces du centre.

notice de montage

Axonometrie de la mezzanine Axonometrie de la mezzanine

coupe longitudinale

plan rez-de-chaussée

plan mezzanine

thèmes
carte
temporalité
dimension
programmes
connexion