temporalité


Diagramme de temporalié de l'atelier pédagogique


Diagramme de temporalié de l'atelier pédagogique

Présent dans la zone ETIC, ce bâtiment accueillait les services administratifs des usines Schneider. Il fut achevé en 1903 d’après les plans de l’architecte Paul Friesé. Il présente les caractéristiques emblématiques techniques et esthétiques de son oeuvre. Actuellement en friche, il appartient à l’OPH-77 (Office Public de l'Habitat de Seine et Marne). Grâce à sa volumétrie et sa structure, cet édifice offre l’opportunité d’une réhabilitation aux démolitions et mise en oeuvre minimum pour la mise en place d’un programme hybride. Les surfaces permettent à la fois de créer des logements et de pérenniser l’engagement concernant une extension du centre Anne Sylvestre. Dans une démarche de valorisation de la mémoire collective de Champagne-Sur-Seine, soutenue par le conseil municipal des anciens, un musée de l’électricité se développe aussi dans le corps central du bâtiment. Les logements s’insèrent dans les deux ailes du bâtiment. Leur typologie (T2, grandes collocations) a pour vocation d’encourager une mixité générationnelle couplée aux autres éléments du programme. Il s’agit de s’inscrire dans la recherche de nouvelles méthodes de fabrication du logement social par l’usage de matériaux plus responsables, par le développement du lien social et d’une économie de partage. Les habitants sont alors au coeur de la démarche de réduction du budget logement grâce à une baisse des charges (environ 85 euros/mois). En effet, ils sont mobilisés comme acteurs de conception, de co-construction de leur habitat, et s’impliquent dans l’entretien des espaces communs. Cela engendre également une évolution des pratiques du bailleur par la mise en place de modes de concertation innovants, et de promotion de nouvelles techniques constructives. Ici, les nouvelles cloisons sont en terre crue sur ossature bois, solution efficiente et écologique dont la mise en oeuvre, encadrée, est à la portée de tous.

1. Extension Anne Sylvestre 2.Musée de la mémoire 3. Logements OPH77

Mur de terre crue: le cadre bois Mur de terre crue: le brisalith Mur de terre crue: enduit de terre crue Mur de terre crue Paroi meuble: le cadre Paroi meuble: les casiers Paroi meublemobile

rélevé de la façade

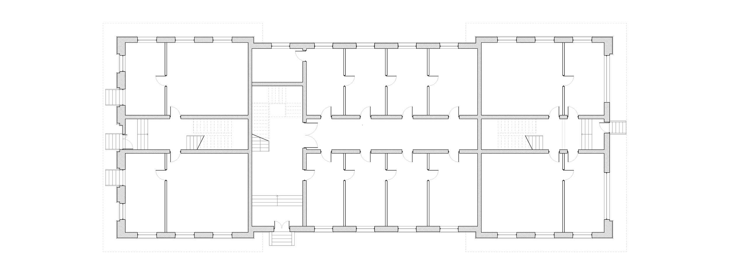
plan original

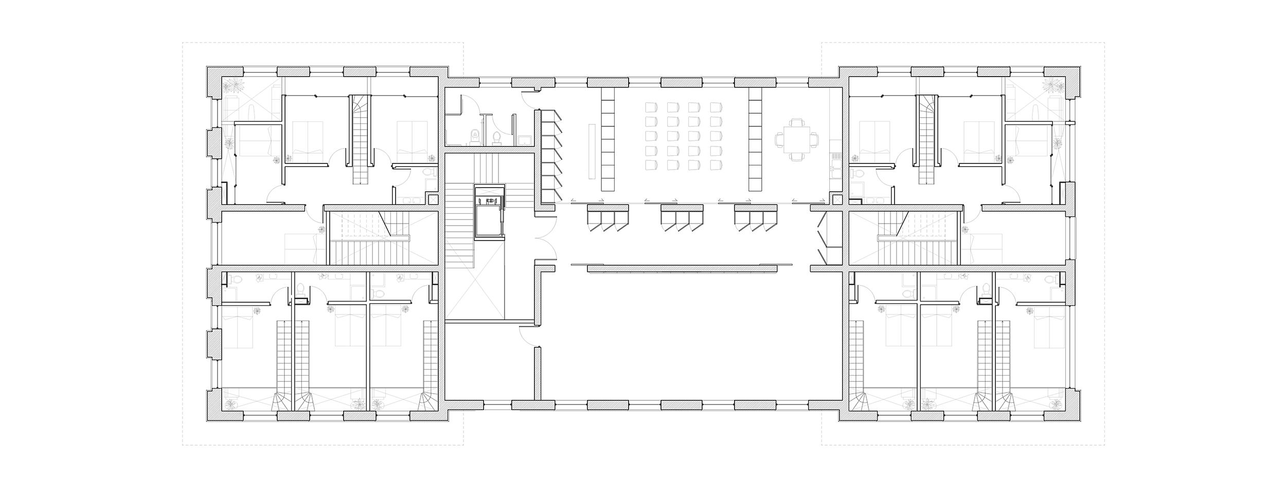
réamenagement rez-de-chaussée

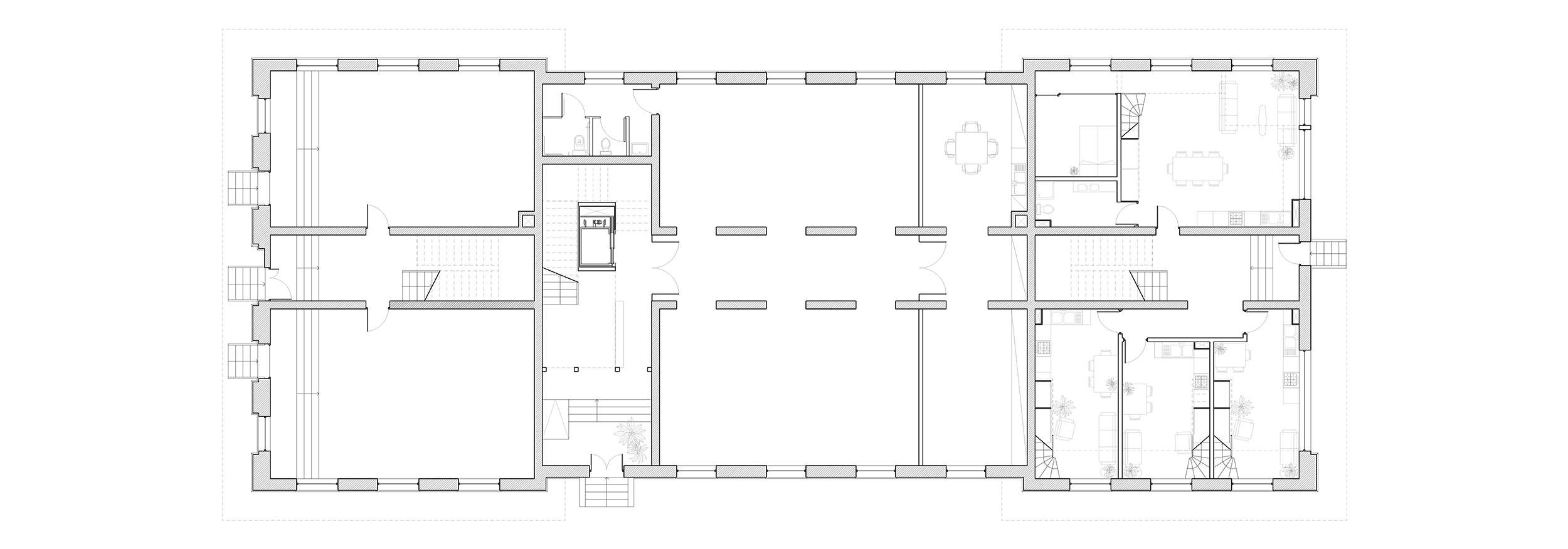
réamenagement R+1

thèmes
carte
temporalité
dimension
programmes
connexion