L'ouverture d'un centre consacré à la mise en valeur des matériaux bio-sourcés dans la construction représente l'alliance d'un projet local et responsable sur le territoire. En partenariat avec des pôles de recherches universitaires et par la sensibilisation des artisans et des habitants, il vise à développer de nouvelles pratiques de construction exploitant les ressources proches. Dans ce but, l’accent est mis sur l’expérimentation, en atelier mais aussi et surtout sur le terrain, en confrontant les matériaux locaux aux situations locales, à Champagne même.
Le marché visé est celui de la maison individuelle (en construction neuve ou rénovation). Les pratiques vertueuses et innovantes y sont sous-exploitées car une grande partie des projets se passent d'un architecte. De plus, les professionnels privilégient les pratiques traditionnelles puisqu'ils en possèdent les savoir-faire qui répondent aux exigences budgétaires des clients. Ces pratiques, qui se limitent trop souvent au duo parpaing-polystyrène, érigent des pavillons fonctionnels mais standardisés, quand le recours à de nouvelles méthodes de construction privilégiant les filières locales pourraient générer de nouvelles formes dans les rues de Champagne sans pour autant peser sur le portefeuille de leurs occupants. Il s’agit alors de diffuser et d'encourager les méthodes de construction alternatives et le recours à des filières de matériaux locaux.
La démarche s'amorce avec la mise en place d'une antenne de recherche sur les matériaux de construction pierre, bois, paille et miscanthus. Le pôle fonctionne en partenariat avec des organismes tels que les Mines de Fontainebleau, l’université Paris IV, AgroParis Tech et le centre des matériaux d’Evry. Il a pour but la production d'un travail théorique sur la matière et ses performances ainsi que l’élaboration de méthodes d'assemblage et de mise en œuvre. L’efficacité des propositions est ensuite testée à l’échelle 1. La démarche expérimentale se traduit par la réalisation de détails mais aussi par un travail plus concret sur le bâti existant couvert par un avis technique d’expérimentation (ATEx (réglementation issue de directives européennes)). Le but est d'éprouver par le temps et l’usage les méthodes envisagées.
La commune de Champagne-Sur-Seine offre un parc immobilier intéressant pour la rénovation à proximité des locaux du centre d'éco-conception ainsi que deux zones à urbaniser pour la construction neuve. Le bâtiment est implanté dans la zone ETIC de Champagne, dans un contexte patrimonial industriel et artisanal en marge de la ville mais pourtant connecté au tissu urbain, facilitant l'accès du public. De plus, la communauté de commune est engagée dans le développement de structures valorisant la construction locale et durable. Le site est largement desservi par les réseaux routiers, fluviaux et ferroviaires

Profitant des vastes bâtiments industriels hérités de l’âge d’or de Champagne, l’écocentre vient occuper l’ancienne usine de circuits imprimés, aujourd’hui vacante et idéalement située au cœur de la zone ETIC (zone d’activités de Champagne) et à proximité des lotissements à rénover qui seront support d’expérimentations. La réhabilitation de ce bâtiment afin d’y installer les locaux de l’écocentre incarne sa première expérimentation.
En investissant l’un des bâtiments construits par Jeumont-Schneider, l’écocentre s’inscrit dans une démarche de valorisation de ce patrimoine qui représente une page importante de l’histoire de la ville tout en proposant un tremplin pour l’économie locale, comme le fut à l’époque la construction des usines. Par ailleurs, l’utilisation d’un bâtiment existant s’inscrit dans la démarche durable de l’écocentre, car un bâtiment neuf consommerait beaucoup de ressources.
La dimension patrimoniale de cette réhabilitation implique de comprendre le bâtiment et d’en identifier les éléments emblématiques qui doivent être mis en valeur. Il s’agit d’un bâtiment très simple, une halle rectangulaire (42x80m) d’un seul niveau de belle hauteur (jusqu’à 6m sous plafond). Sa particularité réside dans la couverture en coques acier M, dont la forme présente le double avantage d’apporter de la lumière zénithale et de franchir de grandes portées sans points d’appuis (20 m en l’occurrence), ce qui permet l’installation d’équipements de grandes dimensions à l’intérieur. Une grande poutre en béton située au centre de la halle et s’appuyant sur deux murs intérieurs soutient ces coques qui reposent en périphérie sur quatre murs en parpaings percés de grandes ouvertures.
La réhabilitation s’attachera donc à mettre en valeur les volumes générés par une telle structure. La simplicité de cette construction permet une grande flexibilité: le bâtiment se présente comme une grande coquille vide dans laquelle l'écocentre vient se nicher.
Lieu de recherche, de construction de prototypes, de formation des artisans et des particuliers, de production d’éléments de construction, centre de documentation, le programme de l’écocentre est multiple et chaque partie se nourrit des autres. L’ambition du projet de réhabilitation est de respecter au maximum l’existant et de le mettre en valeur, tout en usant des techniques de constructions que l’écocentre préconise.
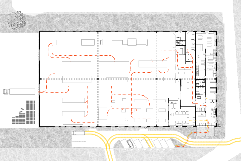
Le volume de la halle est divisé en plusieurs zones aux climats différents par de grandes cloisons intérieures qui s'alignent sur la trame des coques et l'orientation des éclairages zénithaux. Ces cloisons cadrent des vues entre les différents locaux, favorisant le dialogue entre les différentes parties du programme.
Lieu de recherche, de construction de prototypes, de formation des artisans et des particuliers, de production d’éléments de construction, centre de documentation, le programme de l’écocentre est multiple et chaque partie se nourrit des autres. L’ambition du projet de réhabilitation est de respecter au maximum l’existant et de le mettre en valeur, tout en usant des techniques de constructions que l’écocentre préconise.
Avant d’aller plus loin, il convient d’expliquer le fonctionnement de l’écocentre et des différents pôles qu’il regroupe. La forme juridique de l’écocentre est la SCIC (Société Coopérative d’Intérêt collectif) car elle permet de regrouper des chercheurs, une activité commerciale avec le pôle de production/transformation et une partie accueil du public et pédagogique.
Le pôle transformation réalise les opérations nécessaires à la transformation des matériaux bruts pour leurs mises en œuvre telles qu'elles sont envisagées sur le chantier. Cet élément clef du programme permet à la SCIC de générer les revenus minimums nécessaires au financement partiel des coûts de fonctionnement de la structure. Le centre a pour vocation de fournir aux entreprises de mises en œuvre et aux artisans les matériaux ou produits développés par le pôle recherche/expérimentation. L'objectif est l'approvisionnement des professionnels en réduisant le nombre d'intermédiaires et en garantissant des tarifs cohérents. A terme, lorsque l'équipe est capable d’assumer un travail d'encadrement, la filière s'engage à mettre en place un atelier d’insertion en partenariat avec le centre social de Champagne-sur-Seine et les lycées techniques alentours dans une démarche d'apprentissage.
En parallèle, l’organisme fournit un service de conseil auprès de professionnels de la construction concernant l'achat des éléments. Il propose aussi des formations complètes via l'antenne pédagogique, la troisième entité du programme. Ce pôle remplit également une fonction d'information et de sensibilisation du grand public concernant l'usage des matériaux bio-sourcés dans la construction. Afin de favoriser la demande et de généraliser la pratique, il convient d'intervenir auprès des professionnels et des propriétaires. Concernant les ressources matérielles du territoire, elles sont captées dans différents sites alentours. Des bûcherons abattent principalement du bois de feuillu dans les forêts privées des environs. Ce bois est ensuite collecté par les scieries dans un rayon d'influence d'environ 80 km. Les scieries de Villeneuve-les-bordes et de Crécy-la-Chapelle effectuent la phase de première transformation. Elles apparaissent alors comme les établissements du secteur capables de collaborer avec le centre pour un approvisionnement en bois. La pierre est extraite des carrières de Souppes et de Fontainebleau qui produisent respectivement du calcaire et du grès. Les blocs sont acheminés depuis les carrières et stockés dans le centre, où ils sont distribués selon la demande. Enfin, la paille et le miscanthus sont acheminés par les agriculteurs depuis leurs exploitations agricoles.
A l’échelle du bâtiment, la partie production a un fonctionnement plus codifié et des besoins surfaciques bien plus importants ; elle bénéficie donc d’un accès exclusif réservé aux poids lourds livrant des matières premières. A l’autre extrémité du bâtiment sont regroupés les locaux chauffés, dans la partie isolée par l’intérieur. Le système de cloisons est adaptable aux évolutions futures du programme, au fil desquelles la partie recherche et pédagogie sera peut-être amenée à se développer et exigera plus d’espace. Seule une petite partie du bâtiment est isolée, et par l’intérieur, un système qui permettra facilement d’étendre la surface chauffée si nécessaire.
Circulations
Réhabilitation
Aménagement
Dans la partie occupée par les locaux chauffés, l’isolation est réalisée par l’intérieur grâce à un système de caissons bois-miscanthus. Manuportables, ces caissons viennent se fixer sur un lattage sur le mur en parpaing existant et s'imbriquent les uns dans les autres sur la hauteur pour former un mur intérieur perspirant. Ces caissons sont assemblés à partir de petites sections de bois locaux pour l'ossature; l'isolation est assurée par 20cm de miscanthus maintenu par un textile et les caissons sont clos par des panneaux de fibre de bois.
Les cloisonnements intérieurs, eux, innovent avec l’utilisation de panneaux de paille compressée (fabriqués dans l’écocentre) fixés sur des montants en petites sections de bois de feuillus assemblés. Les finitions varient entre panneaux bruts (révélant le système constructif), lambris de bois locaux ou enduit à base de miscanthus, qui sont tous des systèmes alternatifs aux finitions traditionnelles.
Les dimensions des éléments sont pensées pour permettre une manutention simple et une mise en oeuvre rapide: le chantier de l'écocentre ne demandera que quelques mois avant d'être pleinement fonctionnel.
En arpentant le bâtiment, chacun des usagers, qu'il soit professionnel ou simple visiteur, s'imprègne des possibilités qu'offrent les matériaux locaux et de la créativité qu'ils autorisent.