Le cas étudié ici est celui du lotissement pavillonnaire dit "des ingénieurs" ou "bourgeois", situé à Champagne-sur-Seine. Il est constitué de 12 pavillons, divisés en 2 ou 4 logements. Installés en bordure de Seine, ils sont situés au Nord de la zone ETIC et de l'ancienne usine Schneider.
Constitué de pavillons simples, doubles et de copropriétés de quatre appartements, certains de ces bâtiments composant ce lotissement sont classés “bâti remarquable”, ainsi que les clôtures qui les entourent. Ils disposent de grands jardins communs, aujourd'hui répartis entre les logements et divisés par des clôtures de fortune leur permettant des usages différents. Les visites de terrain et les rencontres avec les habitants ont permis de soulever plusieurs problématiques. Sont ressortis des constats de logements non adaptés à leurs habitants (population vieillissante) et non performants thermiquement parlant.
Lors de la conception de l'usine Schneider, les architectes rattachés à l'entreprise projettent la construction d'une véritable ville ouvrière. Cette ville permettra de répondre aux besoins en logement induits par l'arrivée de nombreux ouvriers dans l'ex-village de Champagne-sur-Seine.


Construit entre 1901 et 1910 selon les plans de l'architecte Edmond Delaire, ce lotissement est situé en bordure de Seine, offrant ainsi un cadre "d'agrément" aux employés de l'usine qui y logeaient. Il s'agit des premiers logements ouvriers construits à Champagne. Le lotissement a été complété dans les années 1950 par cinq pavillons supplémentaires. Financés par la Société Immobilière de Champagne, les pavillons sont cédés aux ouvriers selon le principe d'annuités. La ville sera étendue par la suite par la création d'autres lotissements pavillonnaires, à savoir la Cité Loyson (1908-1913), la Cité des Alouettes (1912-1913), la Cité de l'Aubépine (1920) et le lotissement des Castors (1953-1958).
L'intervention proposée se concentre sur une exigence énergétique et de confort: isolation, étanchéité à l'air, qualités spatiales et production d'énergie. Elle prend en compte le caractère classé de l'ensemble en privilégiant l'isolation par l'intérieur et les systèmes bioclimatiques. Elle répond en outre aux exigences économiques, en optimisant les coûts d'intervention par le choix de filières locales compétentes, la sélection des matériaux et une réflexion sur la logistique. Cette intervention répond par ailleurs à une exigence sociale, en adaptant les pavillons aux nouveaux usages du logement : évolution de la cellule familiale, travail à domicile, vie en copropriété. Ces différentes exigences se recoupent entre elles, et une même intervention peut satisfaire plusieurs entrées. Ce faisant, une révision du PLU sera nécessaire concernant le caractère remarquable du bâti mais aussi concernant l'incitation à la rénovation énergétique. Celle-ci peut passer par une communication sur les aides financières mises à disposition par l'Etat (voir tableau ICI).
Pour chaque état, situation hivernale (à gauche) et estivale (à droite).
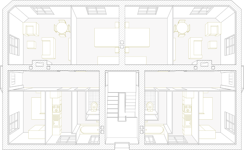
Climats intérieurs (hivernal/estival)
Etat 1901, lors de la construction du lotissement.
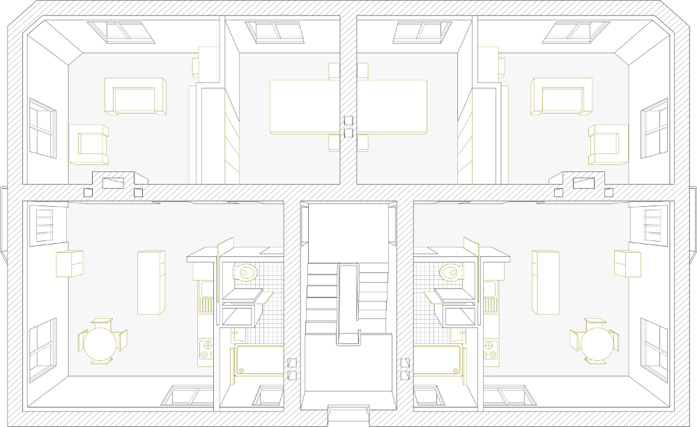
Climats intérieurs (hivernal/estival)
Etat 1975, faisant suite à la réglementation thermique de 1974.
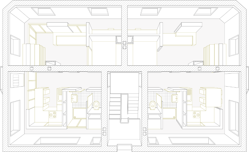
Climats intérieurs (hivernal/estival)
Etat 2016, en accord avec la réglementation thermique 2012.
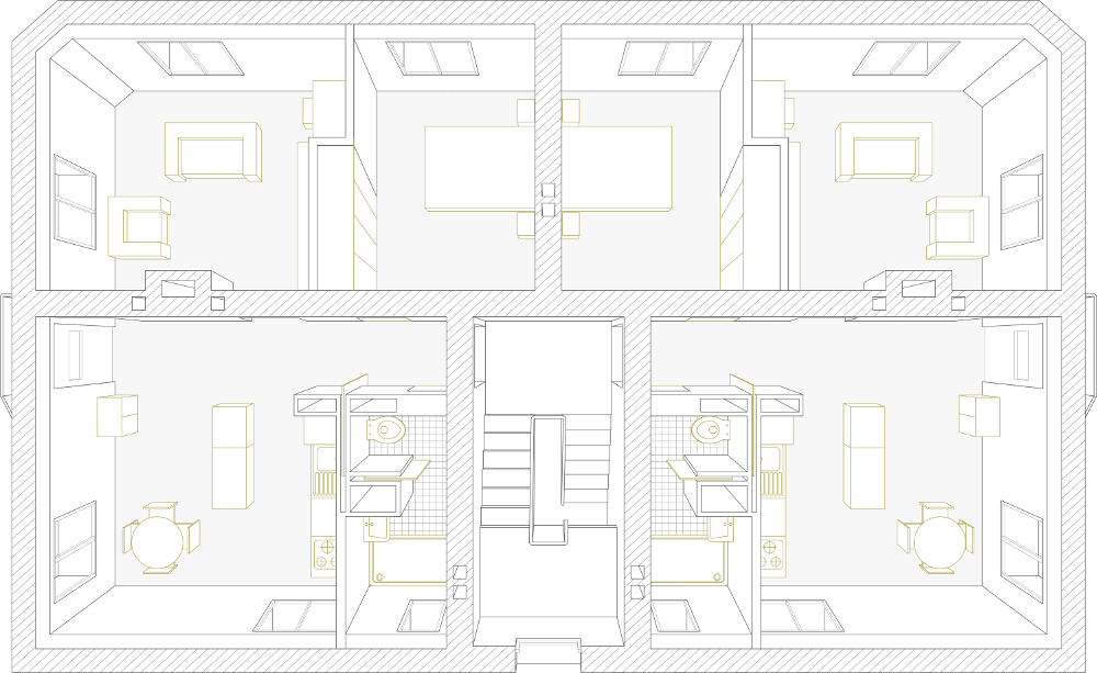
Climats intérieurs (hivernal/estival)
Etat 2020, en accord avec la réglementation thermique 2020 BEPOS (Bâtiment à Energie Positive).
Climats intérieurs (hivernal/estival)
Etat 2040, proposant des modes de vie différents selon les saisons et visant une économie d'énergie.