Piscine municipale des Collinettes

Communauté de Communes de Moret-sur-Loing
rue des Collinettes
77670 Vernou-la-Celle-sur-Seine

1 bassin de 12 x 25m
1 petit bassin
30 litres d'eau/jour/baigneur recyclés
Surface : 600 m2

^

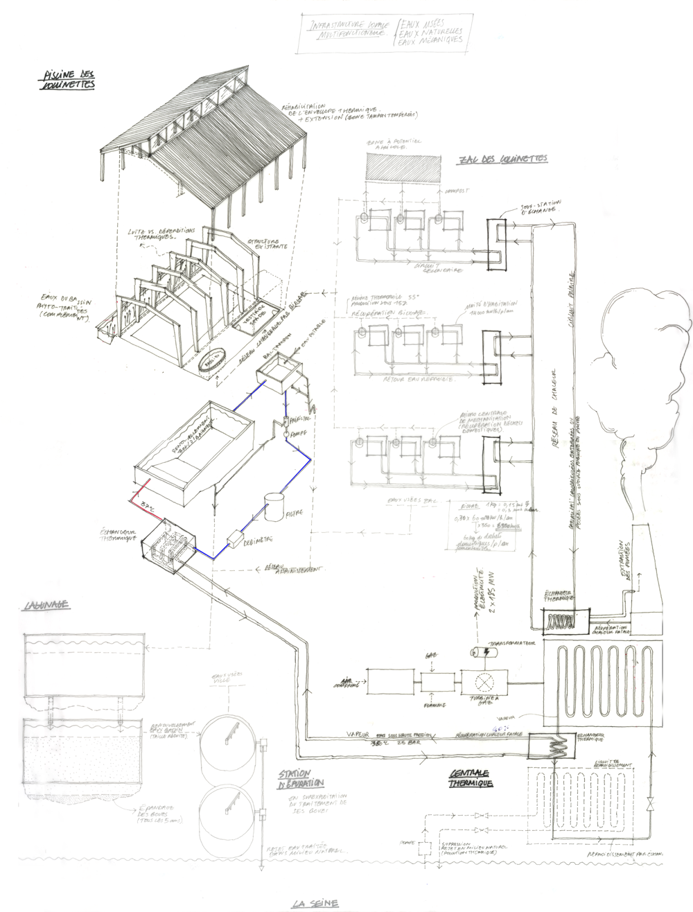
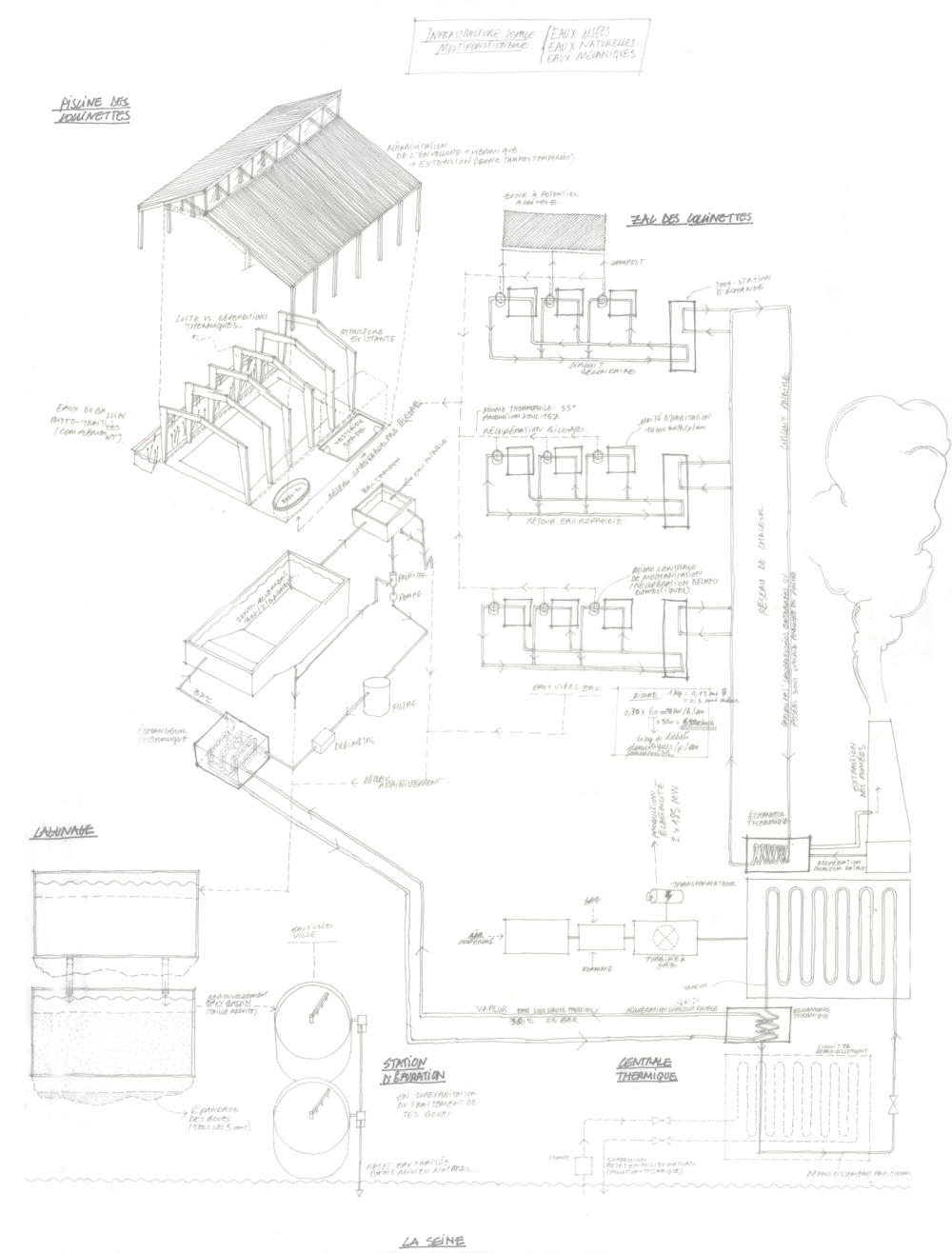
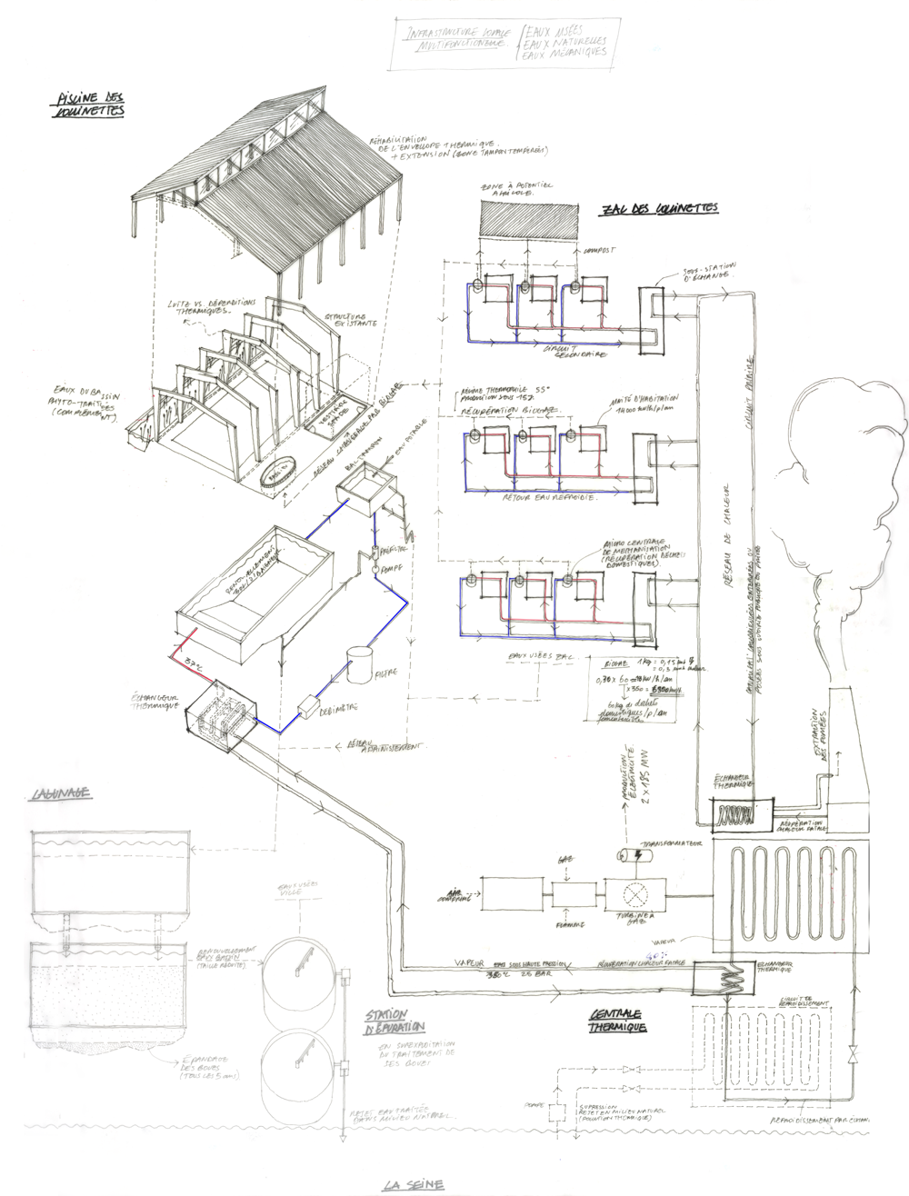
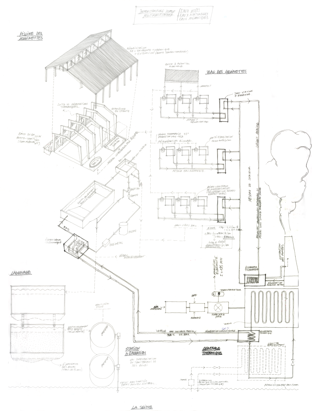
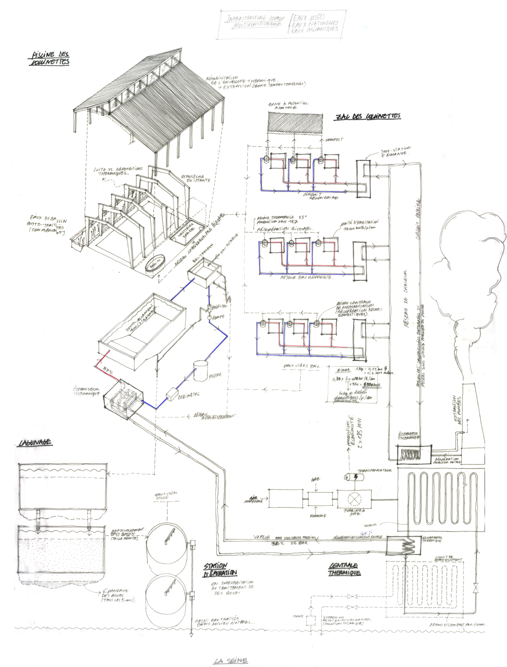
La piscine a subi une série de fermeture ponctuelles depuis 2013. L’inondation soudaine de la piscine de Moret-Sur-Loing au printemps 2016 a remis en cause la fermeture estivale programmée de la piscine de Vernou. Les deux piscines occasionnent à la CCMSL un déficit cumulé d’un million d’euros, à quoi s’ajoutent entre 6 et 8 millions d’euros de réparation pour la piscine de Moret. La démolition de la piscine des Colinettes se chiffre quant à lui à 600 000 euros. Une pétition lancée par les habitants de Vernou demande vouloir « éviter la fermeture d’un service public de proximité » afin de « continuer à accompagner la population dans son adaptation au milieu aquatique particulièrement prégnant dans notre environnement géographique». Le travail a consisté à mettre en oeuvre différents scénarios, transversaux ou non, permettant d’éviter sa fermeture. Ainsi pourrait être jouée une carte « politique » afin d’infléchir la position de la CCMSL, et recueillir de nouveaux financements. Une carte « programmatique » pour diversifier l’accès à la piscine et augmenter sa fréquentation : intégration dans le parc sportif existant, variation des horaires, anticipation de la venue des habitants de la ZAC etc. Une carte « énergétique » : développer un système de co-génération, afin de récupérer l’énergie perdue de la centrale thermique de Montereau, ou encore imaginer un branchement avec le canal de la Voulzie pour réduire les coûts de la piscine. Une carte « architecturale » pour agir sur « la machine en elle-même » en repensant les aménagements de la piscine et réduire ainsi ses coûts fixes : isolation, système d’épuration, déshumidificateur etc.

Schéma directeur (clic)

La centrale thermique alimente un réseau de chaleur urbain par cogénération

Connexion du réseau de chaleur avec la Piscine des Collinettes, réfection de la toiture et agrandissements est-ouest

Connexion du réseau de chaleur avec la ZAC des Collinettes

La station d'épuration est en surexploitation de traitement de ses boues

Assainissement naturel par lagunage

Une piscine comment ça fonctionne ?

Combien ça coûte ?

Quels montages financiers possibles ?

Pour quelle architecture ?

Dans le scénario proposé, la piscine viendrait se connecter au nouveau réseau primaire de cogénération. Le passage et la construction de ces nouveaux réseaux occasionnera la création d'un talus : positionné le long des terrains de football, les talus seront aménagés pour reconnecter le parc sportif au solarium de la piscine. La piscine se dote ainsi de deux nouvelles « épaisseurs » thermiques de part et d'autre. La première, qui donne sur le solarium, abrite les nouvelles installations ( vestiaires, cabines de douches), la deuxième abrite un bassin de phyto-traitement, qui s'ouvre selon les saisons. La nouvelle enveloppe de la piscine améliore les « apports passifs » thermique et particpe donc ainsi à réduire la consommation de chauffage. L'eau du bassin est désormais chauffée par l'énergie de co-génération, son traitement plus durable limite également le recours à des produits chimiques et favorise son assainissement dans les bassins de lagunage.

Coupe de l'état existant (clic)

Coupe de l'état projeté (clic)

thèmes
carte
temporalité
dimension
programmes
connexion