^

Une architecture des réseaux

La ZAC des colinettes est gérée par trois acteurs différents : Aménagement 77 qui a mission d’aménager la ZAC, faisant appel à une agence d’urbanisme et de paysage, la collectivité qui comprend la municipalité et les Vernoucellois, et l’établissement public foncier d’Île-de-France, chargé de la maîtrise foncière. La volonté de la commission ZAC est de faire venir davantage de familles jeunes et monoparentales, dans une ville où la moyenne d’âge est plutôt élevée, avec une majorité de logement collectif.

Notre positionnement « architectural » serait donc de reconsidérer l’implantation de la ZAC, au regard du travail d’analyse précédent : comment reprendre un système local ( les verdures) pour imaginer une autre division parcellaire ? Comment développer un mode d’assainissement, collectif ou individuel moins lourd sur le plan environnemental ? Quelles en seraient les conséquences en terme paysagères et architecturales? Comment pourrait-on rationaliser la question des réseaux, et repenser ainsi l’implantation des logements collectifs, de la micro-maison ? Peut-on imaginer des gains financiers sur le foncier qui pourrait être reversé ailleurs dans la chaîne de financement ?

Schéma directeur (clic)

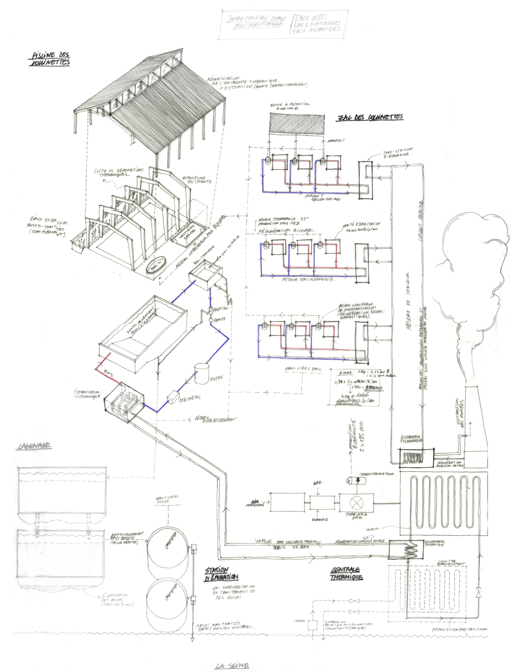
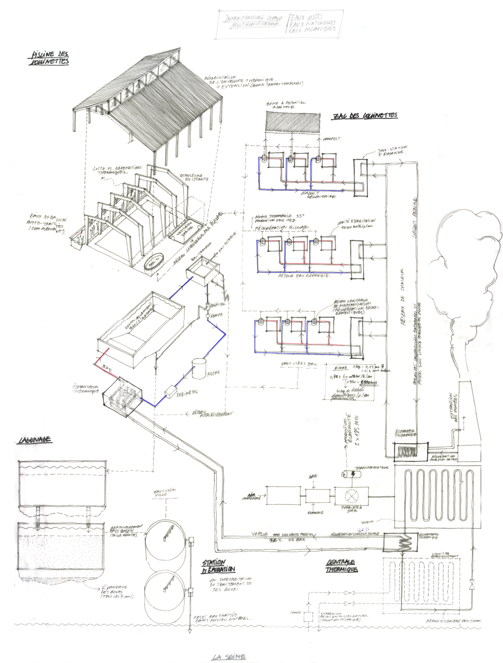
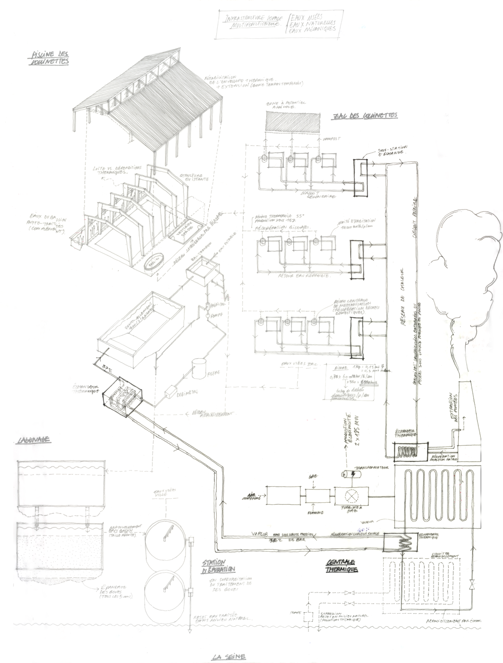
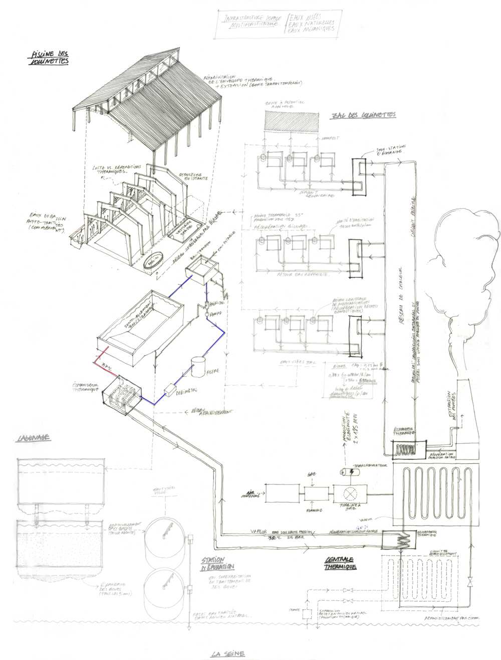
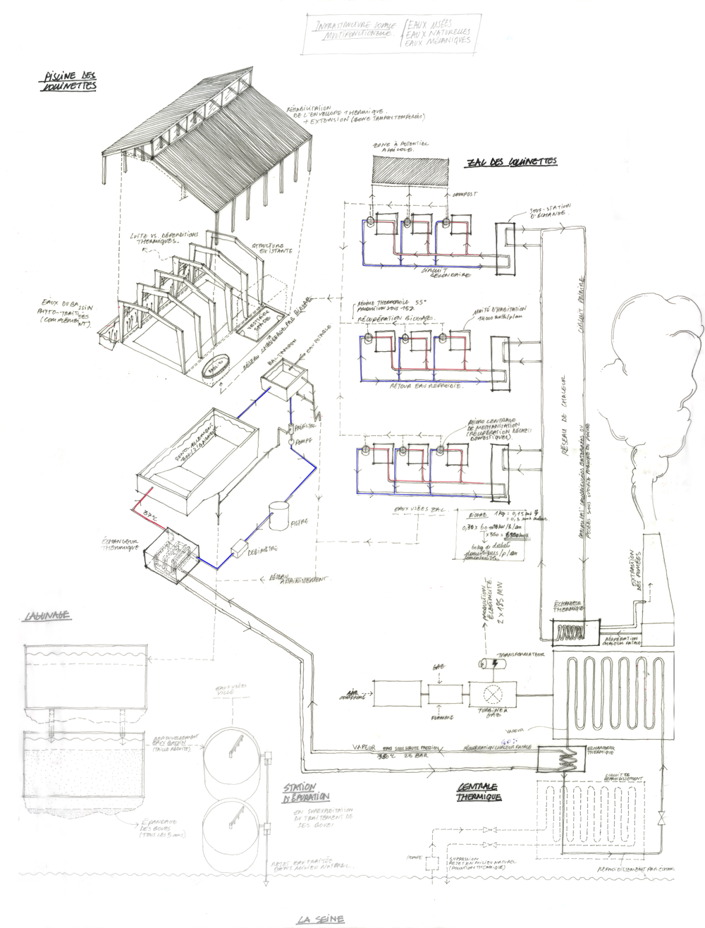
Récupération de la chaleur fatale sur la centrale thermique de Montereau

Alimentation d'un réseau de chauffage urbain à destination de la piscine des Collinettes

Alimentation d'un réseau de chauffage urbain à destination de la ZAC des Collinettes

Station d'épuration en surexploitation du traitement des boues

Assainissement naturel par lagunage

Financements et acteurs

Stratégie d'implantation

Pour quelle architecture ?

La mise en situation des réseaux d'energie constitue le cœur de la proposition d'implantation des logements. La densification du passage des reseaux influence directement l'orientation et la disposition des logements collectifs en bandes : connectés au réseau primaire d'energie de la co-génération, l'enfilade suit le chemin des reseaux. Ainsi chaque groupe de logement dispose d'une station d'échange ( échangeur), et d'un système de traitement des eaux communes. L'épaisseur des réseaux divise le logement en deux partie : le mur contient ainsi le reseau d'eau potable, l'assainissement, le chauffage et la redistribution des eaux grises. En plus d'un objectif de périnnité, les gains sont multiples : consommation d'eau réduite, chauffage réduit grâce à la cogénération et les apports passifs ( orientation et ventilation). La mise en œuvre constructive des réseaux est également simplifiée : les tranchées crées sont autant de talus sur lesquels viennent s'appuyer les différents logements qui se déroulent dans la pente du terrain. Les gains éspérés sur la facture énergétique et la densification des logements autours des réseaux seraient autant de gains sur le foncier : les parcelles offrent aux potentiels acheteurs ou locataires d'avantage de terrains en fond de parcelle, à l'image de l'organisation des « verdures ». Chaque terrain profite des décalages de la pente pour se diviser, cependant là encore certains usages peuvent être communs : gestion du bio-gaz par le compost, chemin d'accès, fond de jardin partagés qui deviennent du même coup des composants de l'espaces public. L'impact sur le paysage serait également moindre et d'avantage pensé en amont : la ZAC s'inscrit dans la continuité et en connection directe avec le parc sportif dont elle partage le réseau de chauffage. On peut également imaginer cette inter-dépendance comme constitutive de d'avantage de lien social : « mon voisin nage dans une piscine dont l'eau est chauffée par le même réseau qui chauffe l'eau de mon évier ». Là encore, des solutions de regroupement économique peuvent se mettre en place entre la gestion de la piscine municipale, et la mise à disposition du foncier pour la ZAC.

Coupe d'un logement type (clic)

Evacuation des eaux grises

Alimentation en eaux grises traitées localement

Récupération des eaux de pluie

Arrivée de chauffage urbain

Retour vers chauffage urbain

Alimentation en eau potable et en eau chaude sanitaire

Alimentation en biogaz par méthanisation des déchets organiques

Alimentation en eau solaire

Evacuation des eaux vannes

thèmes
carte
temporalité
dimension
programmes
connexion